Zum Hauptinhalt springen Zur Suche springen Zur Hauptnavigation springen
Menü

Beschreibung

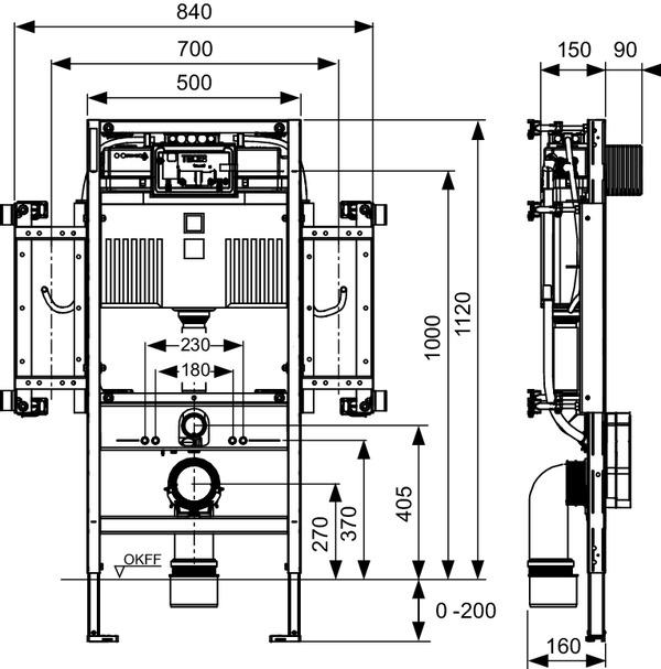
TECEprofil WC-Gerontomodul mit Uni-Spülkasten, Bauhöhe 1120 mm 9300309, Betätigung von vorne

TECEprofil WC-Gerontomodul mit Uni-Spülkasten, Keramikbefestigung für 48 cm Sitzhöhe, Bauhöhe 1120 mm

WC-Modul inklusive "easy fit" Betätigungsplattenmontage und Leerrohr für den Anschluss elektronischer Dusch-WCs. Zur Befestigung an TECEprofil Profilrohren oder für den Einbau in UA-Profil-Wände oder vor einer massiven Wand. Für barrierefreies Bauen mit erhöhter Keramikbefestigung. Modul mit seitlichen Stahlrahmen und Leerrohren zur Kabelführung, inklusive Befestigungsmaterial.

Stützklappgriffhöhe = 760 mm

Uni-Spülkasten für Betätigung von vorne:

  • Sicherheitstank aus schlagzähem Kunststoff, entspricht EN 14055
  • Spülkasten komplett vormontiert und versiegelt
  • Spülkastenanschluss mit Außengewinde R 1/2" seitlich, kompatibel zu Schnelladaptern
  • 10 Liter Tankvolumen
  • 6 Liter voreingestellte Standardspülmenge
  • 4,5/7,5/9 Liter Spülmenge jederzeit einstellbar
  • 3 Liter Teilmengenspülung bei Zweimengentechnik
  • Restvolumen zur sofortigen Reinigungsspülung nutzbar
  • Schwitzwasserisoliert
  • Für TECE-Betätigungsplatten und WC-Armatur
  • Als Ein- oder Zweimengenspülkasten einsetzbar
  • Easy fit Betätigungsplattenmontage
  • Installationstunnel für Serviceöffnung, ohne Werkzeug kürzbar
  • Geräuscharmes hydraulisches Füllventil, Armaturengruppe 1, entspricht DIN 4109

Modulrahmen:

  • Selbsttragend, pulverbeschichtet
  • Zwei verstellbare Fußstützen für einen Fußbodenaufbau von 0-200 mm
  • Zwei Haltebolzen und Muttern M 12
  • Acht tiefenverstellbare Modulbefestigungen
  • Vier Multiklemmen zur Befestigung in einer TECEprofil Wand
  • Seitliche Stahlrahmen zur Aufnahme des Stahlplatten-Sets
  • WC-Ablaufbogen DN 90 mit Übergangsadapter DN 90/100 aus PP
  • Übergangsadapter auch für waagerechten Einbau geeignet
  • WC-Anschlussgarnitur DN 90
  • Marke: TECE
  • Artikelnummer: 9300309

Sicherheitshinweise

Sicherheitshinweise

Bitte beachten Sie die folgenden Hinweise zur sicheren Nutzung der angebotenen Produkte.
Sie dienen der Vermeidung von Gefahren, Verletzungen sowie Sach- und Folgeschäden.

Die Nutzung darf ausschließlich bestimmungsgemäß und unter Beachtung aller mitgelieferten Produktinformationen erfolgen. Montage, Installation und Wartung dürfen – sofern erforderlich – nur durch qualifiziertes Fachpersonal durchgeführt werden.

Bewahren Sie alle sicherheitsrelevanten Informationen dauerhaft auf und geben Sie diese bei Weitergabe des Produkts an Dritte mit.

Sanitär- und Badprodukte

Sanitärprodukte stehen in direktem Zusammenhang mit der Trinkwasserversorgung und erfordern eine fachgerechte Installation.
Vor Beginn der Arbeiten ist die Wasserzufuhr vollständig abzusperren und das Leitungssystem drucklos zu machen.

Alle Verbindungen sind mit geeigneten Materialien fachgerecht abzudichten und nach der Montage sorgfältig auf Dichtheit zu prüfen. Bereits kleinste Undichtigkeiten können langfristig zu erheblichen Wasser- und Gebäudeschäden führen.

Bei Warmwasserinstallationen besteht Verbrühungsgefahr. Es wird empfohlen, geeignete Temperaturbegrenzungen oder Thermostatarmaturen einzusetzen.

Die geltenden Hygienevorschriften für Trinkwasserinstallationen sind einzuhalten. Verunreinigungen können gesundheitliche Risiken verursachen.

Bei Bade- und Duschsystemen besteht erhöhte Rutschgefahr, insbesondere bei Nässe. Geeignete Maßnahmen zur Rutschhemmung sollten berücksichtigt werden.

Unsachgemäße Montage oder Abdichtung von Duschen, Wannen oder Anschlüssen kann zu verdeckten Feuchtigkeitsschäden und Schimmelbildung führen.

Elektrische Komponenten und Systeme

Arbeiten an elektrischen Anlagen dürfen ausschließlich durch qualifizierte Elektrofachkräfte durchgeführt werden.

Vor Beginn von Arbeiten ist die Stromversorgung vollständig zu unterbrechen und gegen Wiedereinschalten zu sichern.

Elektrische Komponenten dürfen nicht mit Wasser oder Feuchtigkeit in Kontakt kommen, sofern sie nicht ausdrücklich dafür ausgelegt sind.

Beschädigte Kabel, Steckverbindungen oder Geräte dürfen nicht verwendet werden, da die Gefahr von Stromschlag oder Brand besteht.

Schwere und sperrige Produkte

Beim Transport und bei der Montage schwerer oder sperriger Produkte besteht eine erhöhte Verletzungsgefahr.

Der Transport sollte nach Möglichkeit durch mehrere Personen oder mit geeigneten Hilfsmitteln erfolgen.

Bei der Montage ist auf eine sichere Befestigung sowie auf die Tragfähigkeit von Wänden und Untergründen zu achten.

Unsachgemäße Handhabung kann zu Quetschungen, Stürzen oder Materialschäden führen.

Zusätzliche Hinweise

Die produktspezifischen Montageanleitungen, technischen Angaben und Sicherheitshinweise der jeweiligen Hersteller sind stets zu beachten und haben Vorrang.

Produktsicherheit

Hersteller
TECE SE

Adresse
Hollefeldstr. 57
48282 Emsdetten
Deutschland

E-Mail
info@tece.de

Eigenschaften

Serie: TECEprofil
Produktart: Spülkasten
Anwendungsbereich: Wand-WC
Bauhöhe: 1120 mm

Sicherheitshinweise

Sicherheitshinweise

Bitte beachten Sie die folgenden Hinweise zur sicheren Nutzung der angebotenen Produkte.
Sie dienen der Vermeidung von Gefahren, Verletzungen sowie Sach- und Folgeschäden.

Die Nutzung darf ausschließlich bestimmungsgemäß und unter Beachtung aller mitgelieferten Produktinformationen erfolgen. Montage, Installation und Wartung dürfen – sofern erforderlich – nur durch qualifiziertes Fachpersonal durchgeführt werden.

Bewahren Sie alle sicherheitsrelevanten Informationen dauerhaft auf und geben Sie diese bei Weitergabe des Produkts an Dritte mit.

Sanitär- und Badprodukte

Sanitärprodukte stehen in direktem Zusammenhang mit der Trinkwasserversorgung und erfordern eine fachgerechte Installation.
Vor Beginn der Arbeiten ist die Wasserzufuhr vollständig abzusperren und das Leitungssystem drucklos zu machen.

Alle Verbindungen sind mit geeigneten Materialien fachgerecht abzudichten und nach der Montage sorgfältig auf Dichtheit zu prüfen. Bereits kleinste Undichtigkeiten können langfristig zu erheblichen Wasser- und Gebäudeschäden führen.

Bei Warmwasserinstallationen besteht Verbrühungsgefahr. Es wird empfohlen, geeignete Temperaturbegrenzungen oder Thermostatarmaturen einzusetzen.

Die geltenden Hygienevorschriften für Trinkwasserinstallationen sind einzuhalten. Verunreinigungen können gesundheitliche Risiken verursachen.

Bei Bade- und Duschsystemen besteht erhöhte Rutschgefahr, insbesondere bei Nässe. Geeignete Maßnahmen zur Rutschhemmung sollten berücksichtigt werden.

Unsachgemäße Montage oder Abdichtung von Duschen, Wannen oder Anschlüssen kann zu verdeckten Feuchtigkeitsschäden und Schimmelbildung führen.

Elektrische Komponenten und Systeme

Arbeiten an elektrischen Anlagen dürfen ausschließlich durch qualifizierte Elektrofachkräfte durchgeführt werden.

Vor Beginn von Arbeiten ist die Stromversorgung vollständig zu unterbrechen und gegen Wiedereinschalten zu sichern.

Elektrische Komponenten dürfen nicht mit Wasser oder Feuchtigkeit in Kontakt kommen, sofern sie nicht ausdrücklich dafür ausgelegt sind.

Beschädigte Kabel, Steckverbindungen oder Geräte dürfen nicht verwendet werden, da die Gefahr von Stromschlag oder Brand besteht.

Schwere und sperrige Produkte

Beim Transport und bei der Montage schwerer oder sperriger Produkte besteht eine erhöhte Verletzungsgefahr.

Der Transport sollte nach Möglichkeit durch mehrere Personen oder mit geeigneten Hilfsmitteln erfolgen.

Bei der Montage ist auf eine sichere Befestigung sowie auf die Tragfähigkeit von Wänden und Untergründen zu achten.

Unsachgemäße Handhabung kann zu Quetschungen, Stürzen oder Materialschäden führen.

Zusätzliche Hinweise

Die produktspezifischen Montageanleitungen, technischen Angaben und Sicherheitshinweise der jeweiligen Hersteller sind stets zu beachten und haben Vorrang.

Produktgalerie überspringen

Zubehörartikel

TECEsquare WC-Betätigungsplatte Glas weiss glänzend, Tasten weiss glänzend 9240800 - Bild 1
Art.-Nr. 9240800
TECEsquare WC-Betätigungsplatte Glas weiss glänzend, Tasten weiss glänzend 9240800

Auf Lager
Lieferzeit: 3-5 Werktage

Regulärer Preis: 145,90 €
TECEnow WC-Betätigungsplatte 2-Mengen-Technik aus Kunststoff weiß 9240400 - Bild 1
Art.-Nr. 9240400
TECEnow WC-Betätigungsplatte 2-Mengen-Technik aus Kunststoff weiß 9240400

Auf Lager
Lieferzeit: 3-5 Werktage

Regulärer Preis: 47,70 €
TECEnow WC-Betätigungsplatte 2-Mengen-Technik aus Kunststoff schwarz 9240403 - Bild 1
Art.-Nr. 9240403
TECEnow WC-Betätigungsplatte 2-Mengen-Technik aus Kunststoff schwarz 9240403

Auf Lager
Lieferzeit: 3-5 Werktage

Regulärer Preis: 83,90 €
Montage-Set für Wand-WC, Schallschutzset Universal für Wand-WC und Wand-Bidet - Bild 1
Art.-Nr. 999000
WC-Schallschutzset Montage-Set Universal für handelsübliche Wand-WC und Wand-Bidet

Auf Lager
Lieferzeit: 3-5 Werktage

Regulärer Preis: 3,60 €
TECEloop WC-Betätigungsplatte 2-Mengen Glas schwarz, Tasten weiss 9240654 - Bild 1
Art.-Nr. 9240654
TECEloop WC-Betätigungsplatte 2-Mengen Glas schwarz, Tasten weiss 9240654

Bestellware
Lieferzeit: 10-15 Werktage

Regulärer Preis: 181,90 €
TECEsquare WC-Betätigungsplatte Glas schwarz glänzend, Tasten gebürstet 9240806 - Bild 1
Art.-Nr. 9240806
TECEsquare WC-Betätigungsplatte Glas schwarz glänzend, Tasten gebürstet 9240806

Auf Lager
Lieferzeit: 3-5 Werktage

Regulärer Preis: 226,90 €
TECEnow WC-Betätigungsplatte 2-Mengen-Technik aus Kunststoff chrom matt 9240402 - Bild 1
Art.-Nr. 9240402
TECEnow WC-Betätigungsplatte 2-Mengen-Technik aus Kunststoff chrom matt 9240402

Auf Lager
Lieferzeit: 3-5 Werktage

Regulärer Preis: 80,90 €
TECEsolid WC-Betätigungsplatte 2-Mengen-Technik Edelstahl gebürstet (Anti-Fingerprint) 9240434 - Bild 1
Art.-Nr. 9240434
TECEsolid WC-Betätigungsplatte für Zweimengentechnik Edelstahl gebürstet (Anti-Fingerprint) 9240434

Auf Lager
Lieferzeit: 3-5 Werktage

Regulärer Preis: 170,90 €
TECEloop WC-Betätigungsplatte 2-Mengen Glas weiß, Tasten weiß 9240650 - Bild 1
Art.-Nr. 9240650
TECEloop WC-Betätigungsplatte 2-Mengen Glas weiß, Tasten weiß 9240650

Auf Lager
Lieferzeit: 3-5 Werktage

Regulärer Preis: 140,90 €